Violet Crown Assisted Living
This was a group project created for the 2023 IIDA Student Design Competition. We were given a blank floor plan and asked to create an assisted living facility with 15 resident suites and several community and staff spaces. This project included a presentation, poster, and binder of work. Presented here are several items in the project, all of which I have been the creator or a major contributor to.
Completed: Fall 2023
Senior level
A Tropical Vacation
This project was assigned as practice in Illustrator and SketchUp. I was given a small floor plan and asked to create a vacation home for a fellow classmate. I worked with Hanna Holliday as my “client.” I was asked to do some basic hand rendering as part of the design concept development, as well as create a fully furnished floor plan in SketchUp, and create a presentation poster in Illustrator.
Completed: Fall 2020
Sophomore level
The Seven Seas Hostel
This project was assigned as practice in Illustrator. I was asked to hand render the lobby space, create a basic design concept, and most importantly, create a poster presentation of the project.
Completed: Fall 2020
Sophomore level
Various
These are various examples of practice in hand drafting and hand rendering.
Completed: Fall 2019-Fall 2021
Freshman, Sophomore & Junior level
Red Hills Escrow, Inc.
For this project, I was given a floor plan and a mock client interview, and asked to essentially go through the full design process. Included in this project is my process work, concept and program, a furnished floor plan, etc, formatted into a client program.
Completed: Spring 2021
Sophomore level
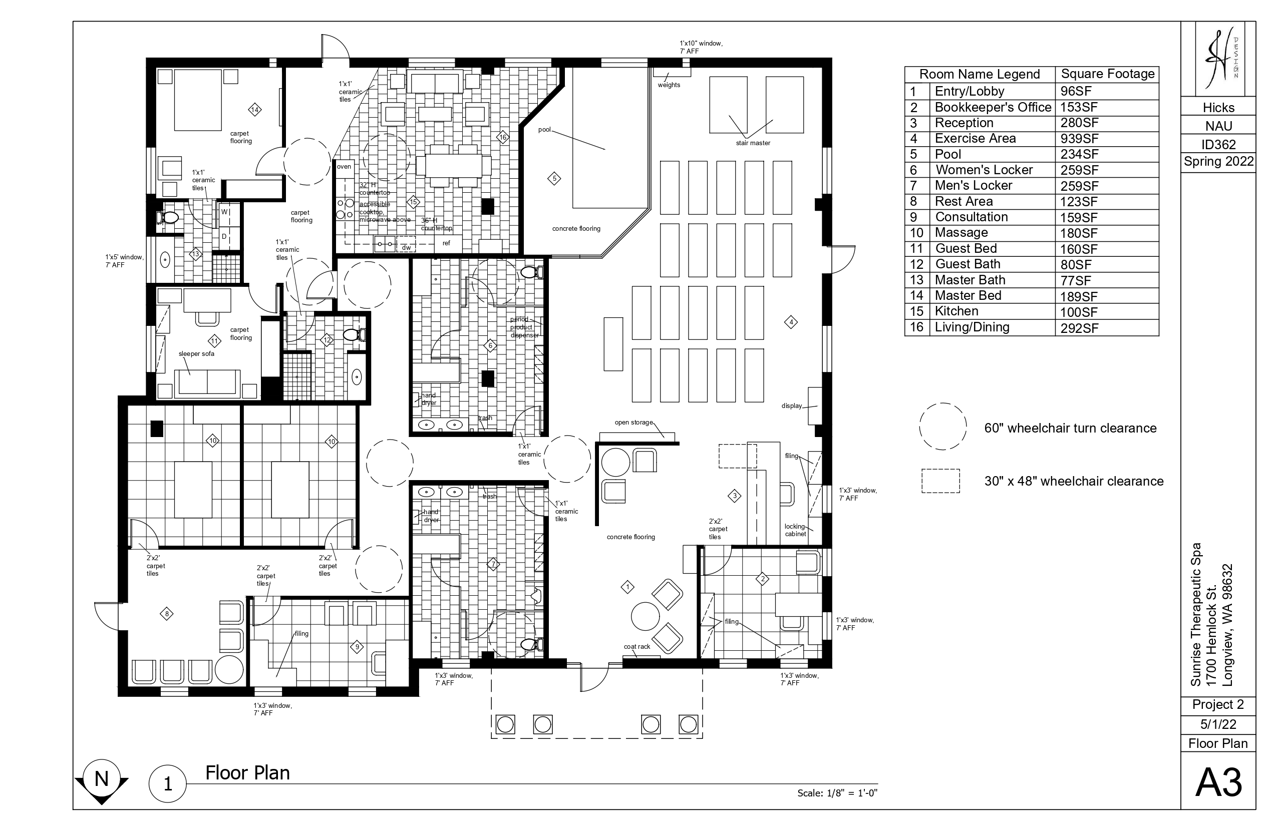
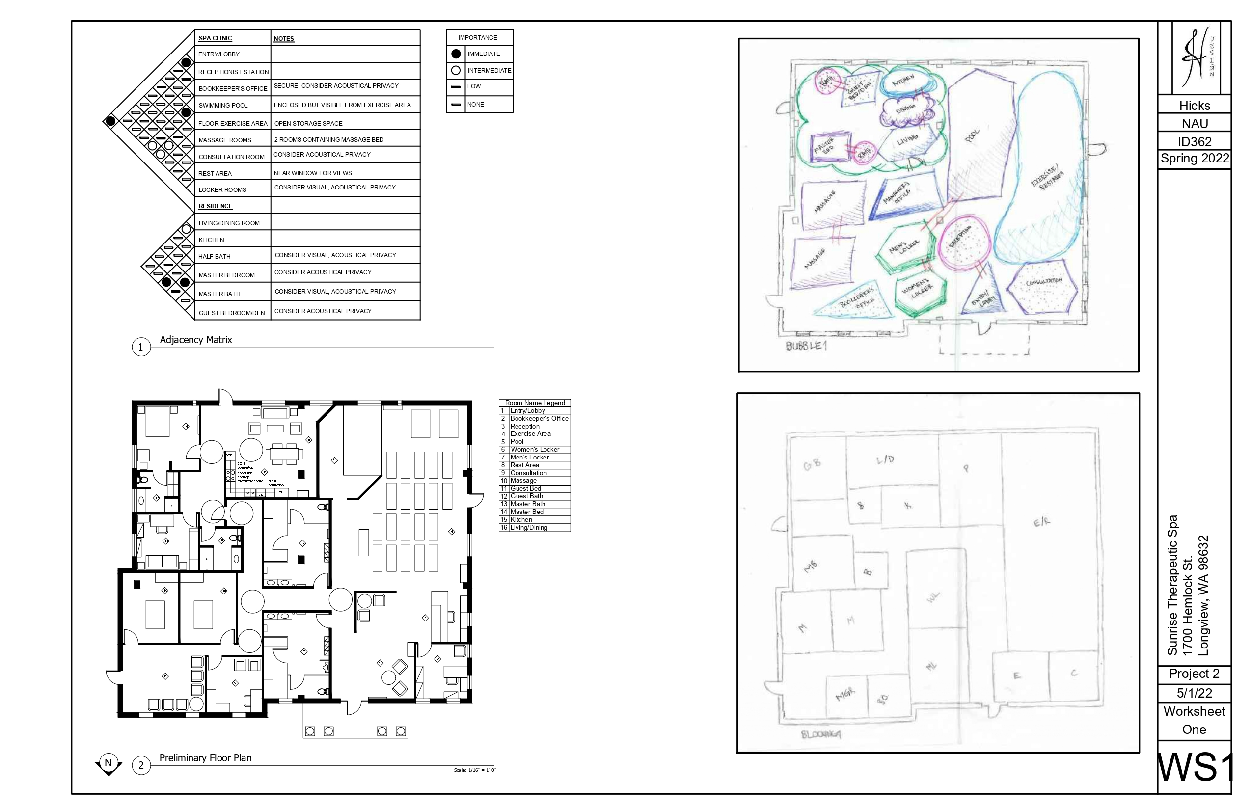
Sunrise Therapeutic Spa
For this project, I was given a floor plan and a set of requirements, and asked to design a floor plan, ceiling plan, and life safety plan. Included in this project is my process work, concept and program, a furnished floor plan, etc, formatted into a construction document set.
Completed: Spring 2022
Junior level

























